Transforming Homes with Laser-Sharp Precision
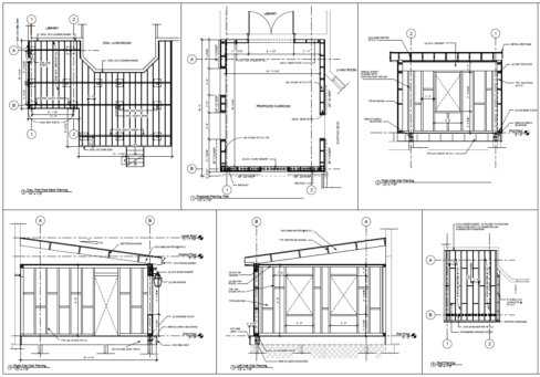
At KDP, we specialize in residential design, utilizing advanced laser 3D tools and software to ensure precise measurements and accurate representations of your vision. Our commitment to delivering exceptional results starts with the foundation of precision. With our state-of-the-art technology, we can provide you with CAD files in multiple formats, including DWG, RVT, SKP, and 2020 KIT, allowing you to visualize your project in remarkable detail.
Comprehensive Construction Drawings for Hassle-Free Permits
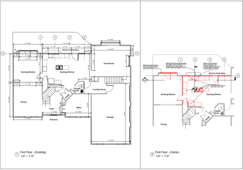
Navigating the complexities of obtaining building permits can be overwhelming. However, with KDP by your side, you can breathe easy. We handle all the necessary construction drawings required for building permits. Our team of experts is well-versed in the International Residential Code (IRC), ensuring that all our designs comply with the highest industry standards. Rest assured, your project will meet all necessary requirements and regulations, making the permit acquisition process hassle-free.
Expert Design for Small Additions and More
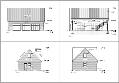
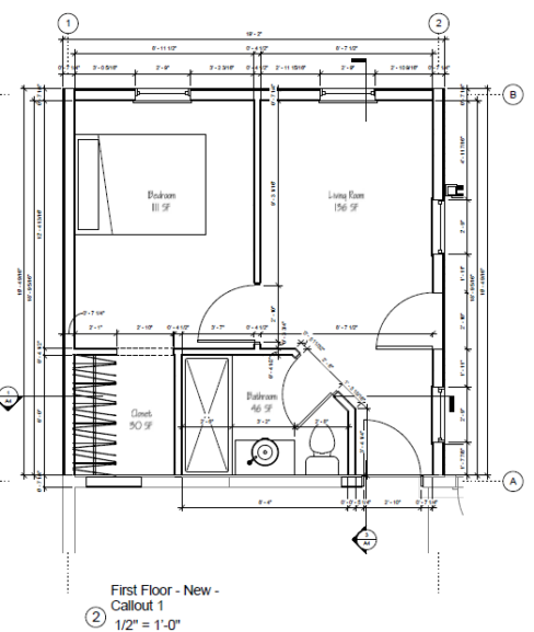
At KDP, our expertise extends beyond kitchens and bathrooms. We are skilled in designing and constructing small additions that elevate your home’s functionality and aesthetics. Whether you’re envisioning a 1-2 bedroom addition, an in-law suite, a sunroom, a patio, or a single to three-car garage, we have the experience and know-how to bring your ideas to life. Our comprehensive approach ensures that all aspects of your project, including convention drawings, basements, and decks, are meticulously planned and executed.
Elevating Your Home's Style and Functionality
When it comes to residential design, we understand that each home is unique, and every homeowner has their own distinct taste and requirements. Our goal is to create personalized spaces that reflect your individual style while enhancing your everyday living experience. Whether you desire a modern, sleek kitchen or a cozy, rustic bathroom, our team of experts will work closely with you to bring your vision to life. We pay meticulous attention to every detail, from the selection of premium materials to the placement of every cabinet handle, ensuring that your space is both visually appealing and functionally optimized.

















